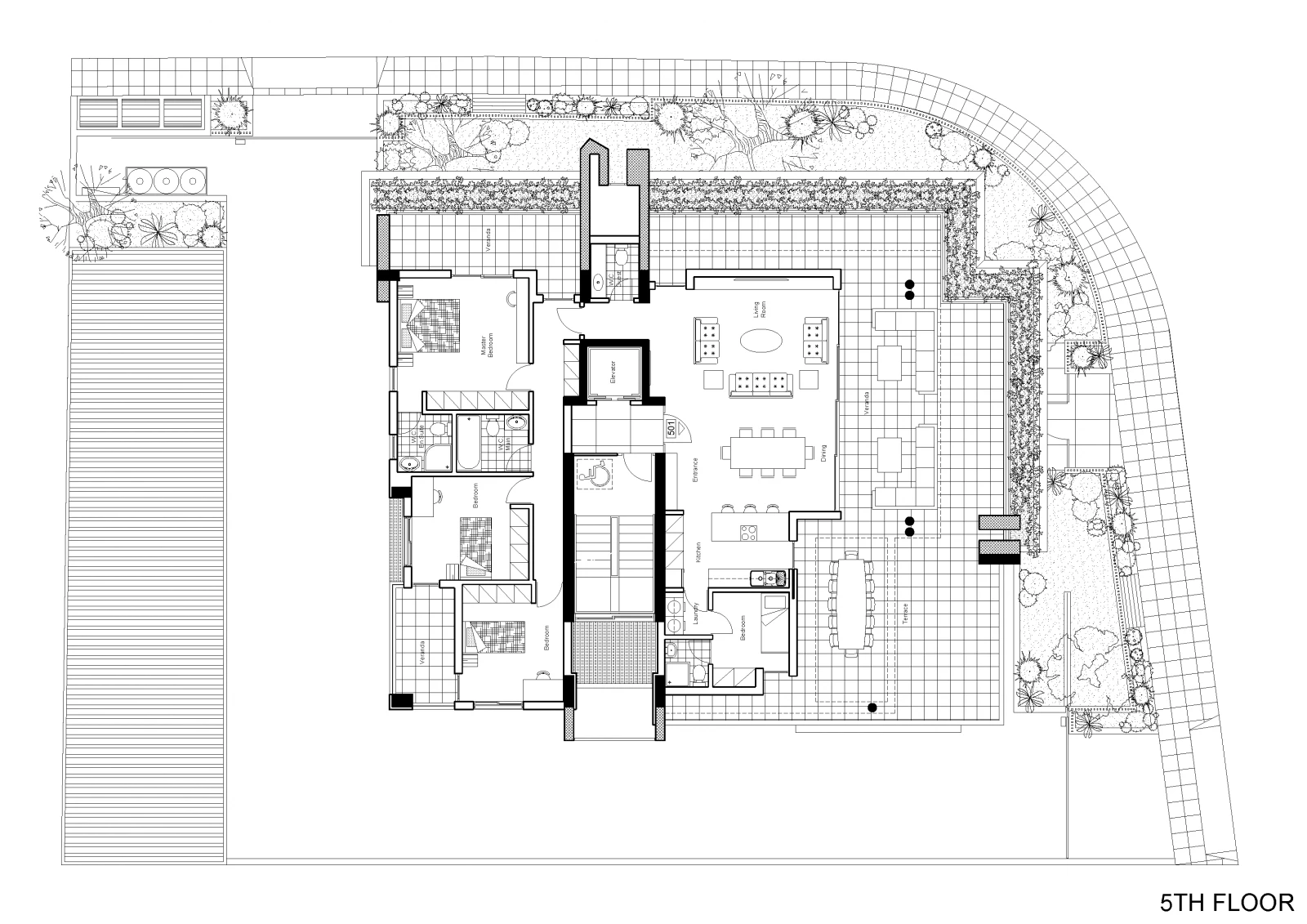
Oaktree Residences is located in the popular residential suburb of Engomi in Nicosia. The project consists of an exclusive collection of 9 modern contemporary apartments (1, 2, 3 and 4 bedroom) that are perfectly suited to families or professionals looking to reside close to the city centre. These homes provide the perfect balance of exclusivity, comfort, functionality, and convenience, designed to exceed the expectations of residents and investors alike.






